Element House TF 98
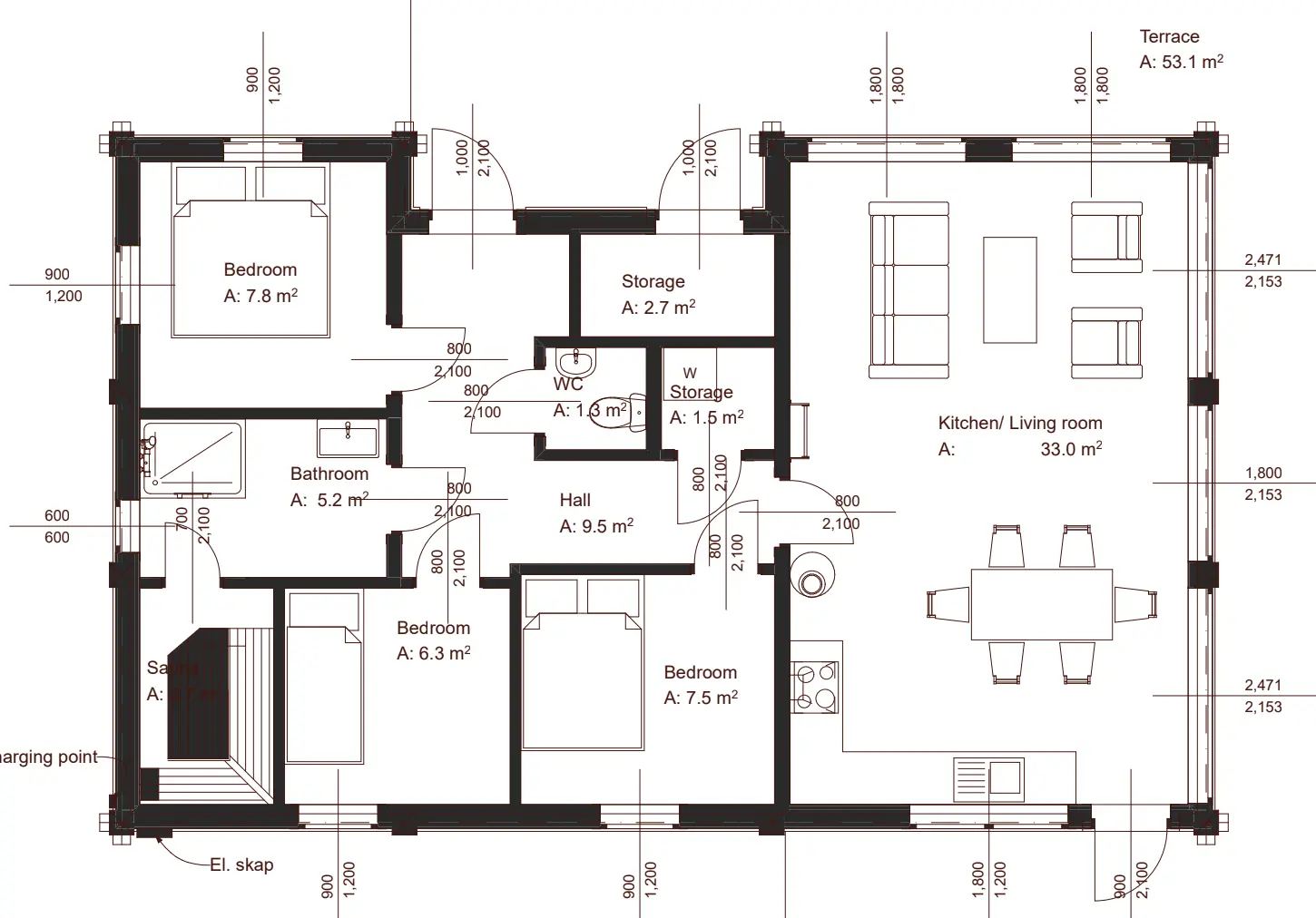
Welcome to Element House TF 98 — a beautifully designed 114.9 m² home that brings together sleek architectural lines, functional living spaces, and a warm, contemporary atmosphere. Whether you’re seeking a year-round retreat or a seasonal escape, TF 98 delivers the perfect balance of comfort, style, and intelligent use of space.
Highlights of TF 98:
3 Bedrooms
Thoughtfully positioned on the ground floor for ease and comfort, these bedrooms offer peaceful rest and privacy – ideal for families, couples or hosting guests.
1 Bathroom and sauna + 1 WC
A well-appointed bathroom and an additional WC ensure practicality and convenience for everyday living and entertaining.
Open-Concept Living Area
The heart of the home features a bright, airy living space that flows effortlessly into the dining and kitchen area – perfect for quiet evenings or lively gatherings.
Bonus Loft Space
A charming loft on the second floor adds an extra layer of flexibility – use it as a sleeping nook, reading hideaway, home office, or play area for children.
Whether you’re gazing out over snow-covered slopes in winter or soaking in the golden summer light, Element House TF 98 is built for making the most of nature – while never compromising on modern living standards.
Compact. Contemporary. Comfortable.
Create your modern mountain lifestyle today — start with Element House TF 98.
Contact us to explore customization options
Bedrooms
3
Bathrooms
1
BYA
109.7 m²
BRA
83.15 m²
NTA
114.9 m²
Width
7.85 m
Lenght
14 m
Height
5.2 m









