Element House TF 52
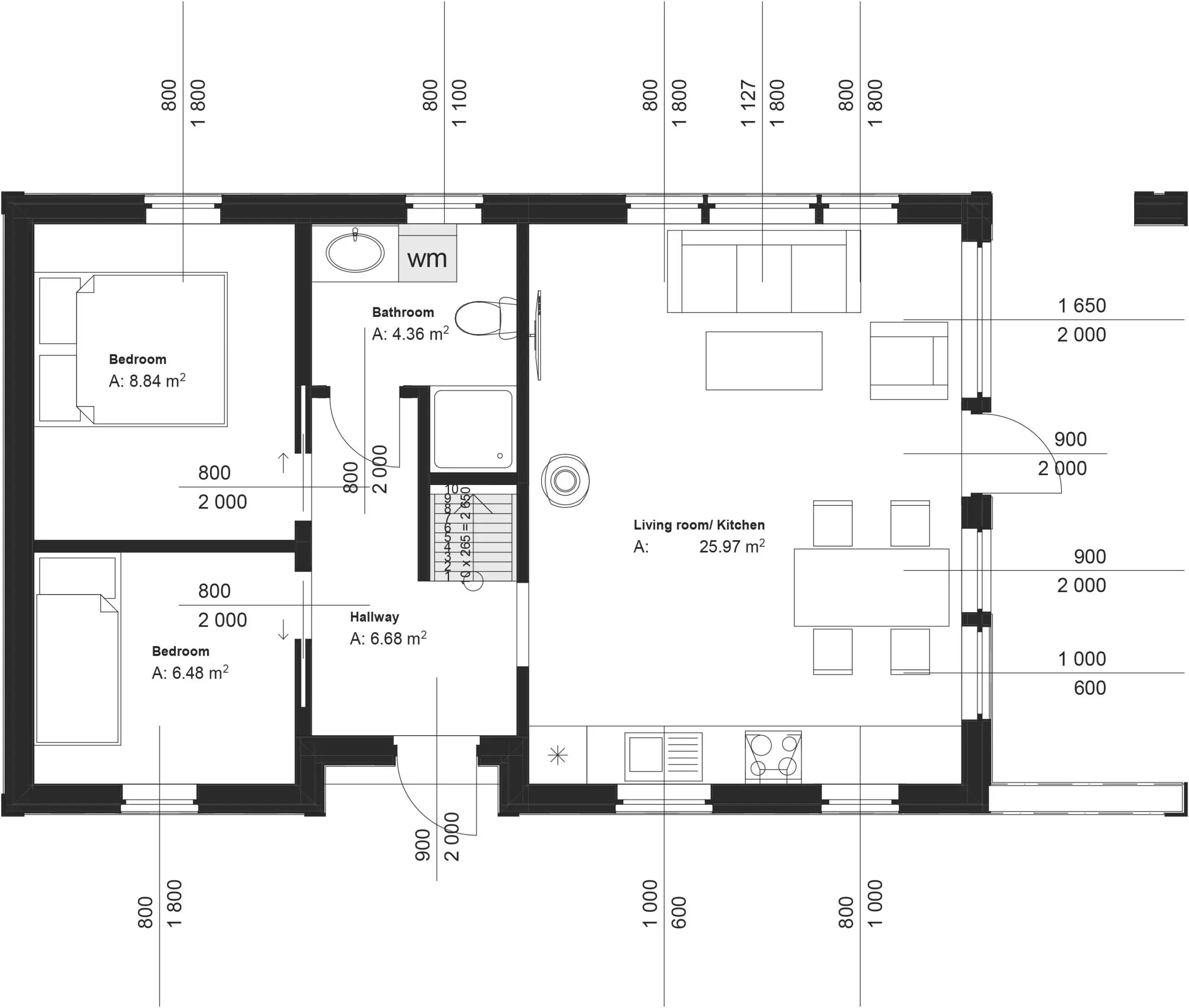
The TF52 is a thoughtfully designed 80.98 m² modern element house that combines warmth, style and practical living. With its intelligent layout and contemporary features, this home is perfect for couples, young families or anyone seeking a refined retreat surrounded by nature.
Highlights of TF52:
2 Bedrooms: Designed for privacy and tranquility.
1 Bathroom: convenience in everyday living.
Floor-to-Ceiling Windows in the Living Room: creating a seamless connection between your home and the outdoors.
Extra Loft on the Second Floor: A versatile space that adapts to your lifestyle – perfect as a lounge, playroom or additional sleeping area.
The TF52 brings together the best of modern functionality and timeless charm. Its clean design lines, efficient use of space, and connection to nature make it more than just a house – it’s a place to recharge, gather with loved ones, and create memories that last a lifetime.
Bedrooms
2
Bathrooms
1
BYA
78.4 m²
BRA
66.21 m²
NTA
80.98 m²
Width
6.4 m
Lenght
12.2 m
Height
5.6 m









