Stavlaft SL 139
SL 139 is a 149.9 m² masterpiece that perfectly marries traditional stavlaft craftsmanship with modern comforts.
Spacious & Comfortable Living:
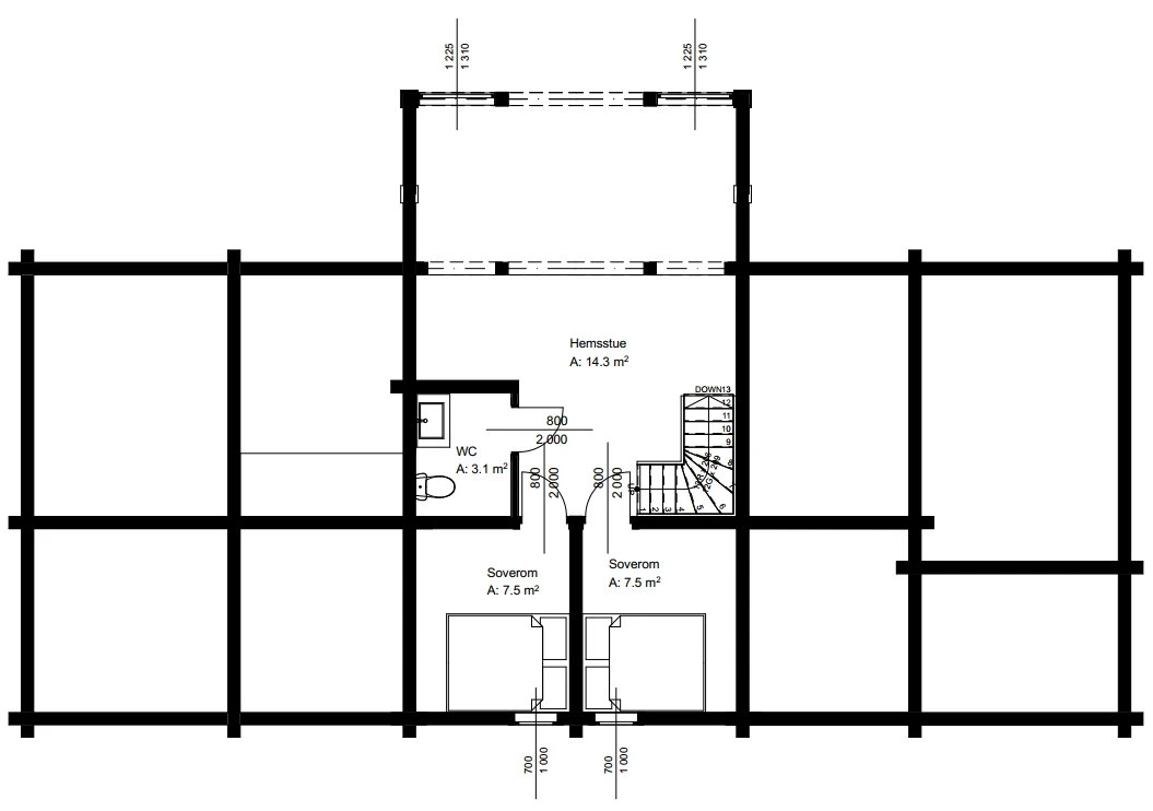
5 Bedrooms: Cleverly designed to ensure restful privacy for every member of the family or visiting friends.
Extra Relaxing Room: A dedicated space on the second floor, perfect for peaceful reading, quiet moments, or children’s play area.
2 Bathrooms + Extra WC: Including a luxurious ensuite bathroom in the master bedroom for ultimate convenience and comfort.
Striking Design & Natural Light:
Open Living Area – 59.7 m²: The heart of the home, offering ample space for entertaining, family gatherings, or simply enjoying a cozy evening indoors.
Floor-to-Ceiling Windows: Soaring windows in the living room flood the space with natural light and invite breathtaking views of the surrounding landscapes inside.
Elegant Architectural Lines: Classic stavlaft style combines with contemporary details to create a unique and enduring aesthetic.
Built for Lifestyle & Memories:
Whether you’re planning festive gatherings in the spacious living area, enjoying quiet mornings bathed in sunlight, or unwinding in the private relaxation room upstairs, the LC139 delivers an atmosphere of warmth and harmony.
Surrounded by the beauty of alpine slopes, cross-country trails, and peaceful forests, this cabin is an invitation to live life closer to nature, while enjoying the refined comfort of superior craftsmanship.
Bedrooms
5
Bathrooms
2
BYA
150.4 m²
BRA
149.9 m²
NTA
149.9 m²
Width
10.25 m
Lenght
18 m
Height
6 m









