Stavlaft SL 129
Stavlaft model SL 129 feels calm, generous and well-proportioned. Every square meter has a purpose, creating a home that works equally well as a holiday retreat or a year-round residence.
Spacious living at the heart of the home. The open 55 m² living room and kitchen form the social core of the house. Large windows invite natural light deep into the interior, while the solid wood structure creates a warm, grounded atmosphere. This is a space made for long dinners, quiet mornings and evenings spent together after a day outdoors.
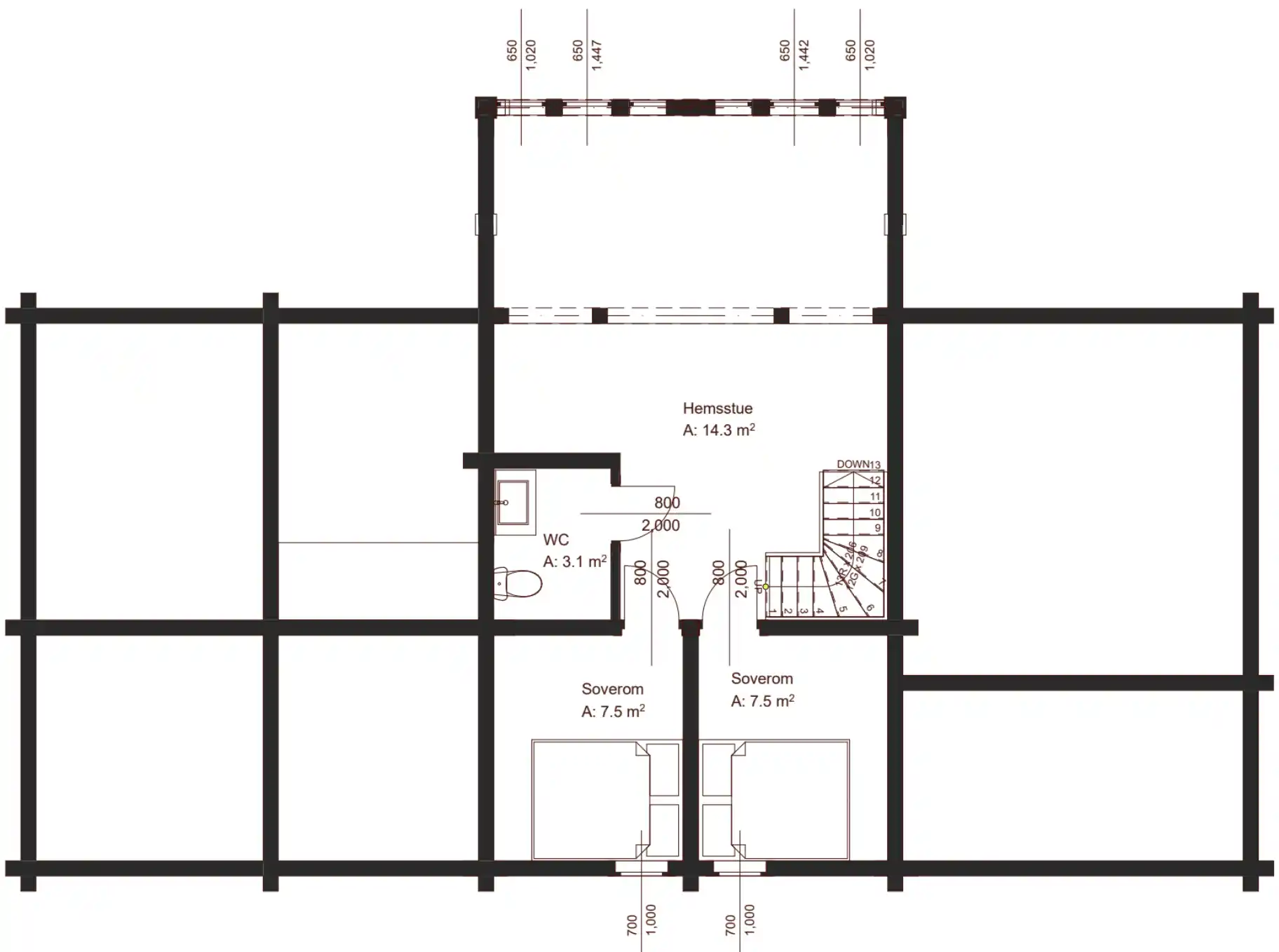
SL 129 offers 4 well-sized bedrooms, giving everyone their own retreat. The master bedroom features an en-suite bathroom, adding a layer of privacy and everyday luxury that elevates the living experience.
In total, the house includes:
2 bathrooms + separate WC
Private sauna, designed for true Scandinavian relaxation
Whether it’s a busy family weekend or guests visiting from afar, the layout ensures smooth daily routines and effortless comfort.
Bedrooms
4
Bathrooms
2
BYA
138 m²
BRA
145.5 m²
NTA
133.35 m²
Width
10.25 m
Lenght
16.35 m
Height
6 m








