Log Cabin LC 60
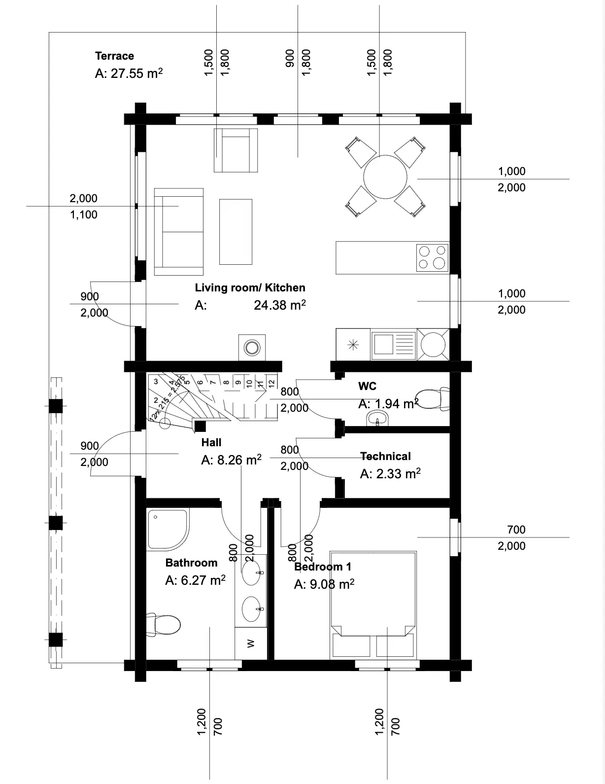
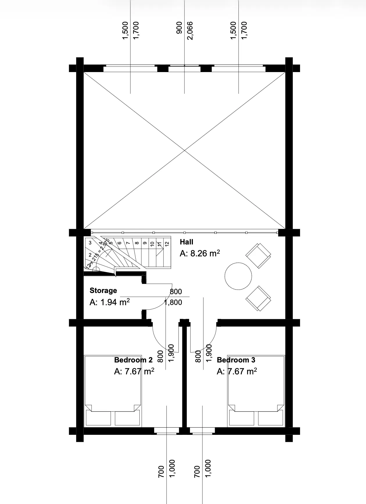
Discover the Smart Design of Log Cabin LC60 Compact yet cleverly designed, Log Cabin LC60 offers the perfect retreat for families or couples looking for comfort and functionality in a smaller footprint. With 80m² thoughtfully spread across two floors, this cabin combines practicality with cozy elegance, making it ideal for mountain escapes.
Features That Make LC60 Exceptional:
3 Bedrooms: Well-planned and inviting, providing comfort and privacy for everyone.
Spacious Bathroom + Additional WC: Designed to meet the needs of busy mornings and relaxing evenings.
A Cozy, Airy Living Area:
Compact Living Room & Kitchen: A seamless layout that maximizes space, perfect for cooking, dining, and unwinding.
High Ceiling in the Living Room: Creates a bright and open ambiance, adding a touch of grandeur to the compact design.
Whether it’s a weekend getaway or a seasonal retreat, Log Cabin LC60 proves that great things come in small packages. Its efficient layout, quality craftsmanship, and charming design make it the perfect haven for nature lovers. Experience the cozy comfort of Log Cabin LC60 – compact, elegant, and perfectly suited for your adventures.
Bedrooms
3
Bathrooms
1
BYA
68.6 m²
BRA
74.5 m²
NTA
80 m²
Width
6 m
Lenght
10.25 m
Height
5.85 m









