Log Cabin LC 54
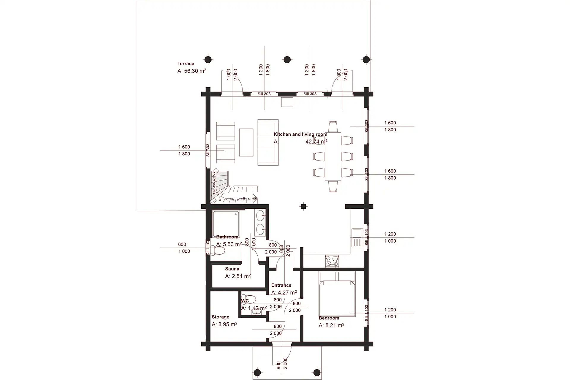
Experience the Modern Elegance of Log Cabin LC54 Spacious and stylish, Log Cabin LC54 is designed to blend contemporary architecture with the warmth of a cozy retreat. With 105m² spread across two floors, this cabin offers everything you need for a comfortable and luxurious stay in the mountains. Features That Define LC54: Spacious and Functional Layout:
3 Bedrooms: Thoughtfully arranged for comfort and privacy, ideal for families or groups.
2 Bathrooms: Modern and well-equipped to handle the needs of everyone in the cabin.
A Living Room Designed to Impress:
High Ceiling in the Living Room (42m²): Creates an open and airy atmosphere, perfect for gatherings or quiet relaxation.
Floor-to-Ceiling Windows: A striking feature that floods the living room with natural light and provides breathtaking views of the surrounding landscape.
Whether you’re enjoying the panoramic views from the living room or relaxing in the comfort of the spacious interiors, Log Cabin LC54 offers the perfect balance of style, luxury, and practicality. Step into the sophisticated charm of Log Cabin LC54 – your ultimate mountain retreat.
Bedrooms
3
Bathrooms
2
BYA
98 m²
BRA
111 m²
NTA
105 m²
Width
9.1 m
Lenght
13.85 m
Height
6.2 m









