Log Cabin LC 205
Log House LC205 — a thoughtfully designed two-apartment residence that combines smart investment opportunity with the timeless beauty of handcrafted log construction. With a total area of 238.44m² (119.22m² per apartment), LC205 offers the perfect balance of comfort, functionality, and architectural elegance.
Highlights of LC205:
Designed for Comfort and Flexibility
Two Separate Apartments: Each apartment is fully self-contained, offering ideal flexibility for rental, extended family living, or a private guest space.
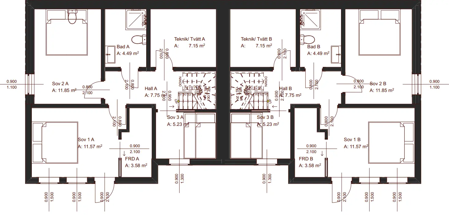
Spacious Layouts:
First Floor: 3 well-proportioned bedrooms and a modern bathroom, providing restful retreats for residents and guests alike.
Second Floor: Main entrance leading to a spacious open-plan kitchen and living room area, alongside a private bedroom with en-suite bathroom.
Extra Loft Space: Perfect for additional sleeping areas, home offices, or cozy lounges — adding versatility and value.
Striking Architectural Features
Ceiling-to-Floor Windows: The living room’s grand panoramic windows flood the space with natural light, offering stunning views and a seamless connection to the outdoors.
Natural Materials, Contemporary Style: Crafted with sustainably sourced logs, LC205 blends traditional craftsmanship with modern design aesthetics — a signature of KM Building’s commitment to excellence.
A Smart Investment Opportunity
LC205 is more than just a home — it’s a versatile investment project designed for today’s market demands.
Whether envisioned as:
A dual-rental property to maximize return,
A holiday retreat for multiple families,
Or a long-term, flexible living solution —
LC205’s design ensures broad appeal, strong rental potential, and enduring value.
Built with precision, crafted with care, and designed for modern lifestyles, Log House LC205 stands as a wise investment in quality living and future financial security.
Bedrooms
8
Bathrooms
4
BYA
132 m²
BRA
234.4 m²
NTA
238.44 m²
Width
7.94 m
Lenght
17.1 m
Height
6.8 m







