Log Cabin LC 167
Welcome to Log Cabin LC167, a modern 260.13 m² masterpiece that redefines mountain living. With expansive interiors, premium features and a striking design rooted in Scandinavian timber craftsmanship, this cabin is tailored for those who want both luxury and lifestyle– in perfect balance. Designed with larger families, groups or multi-generational living in mind, LC167 offers generous private spaces and impressive communal areas, all within a refined and natural aesthetic. Highlights of LC167:
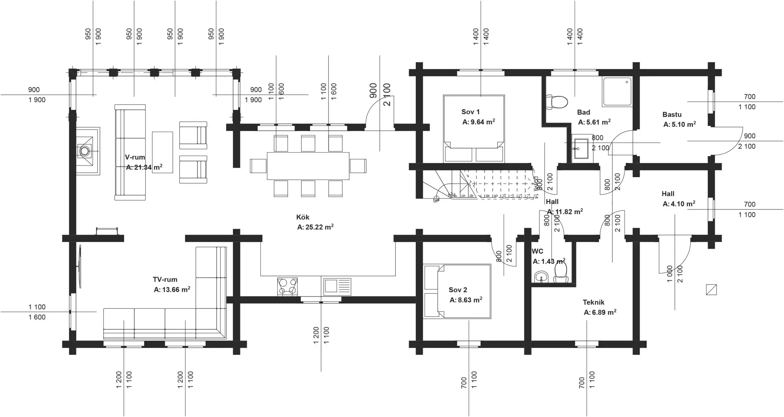
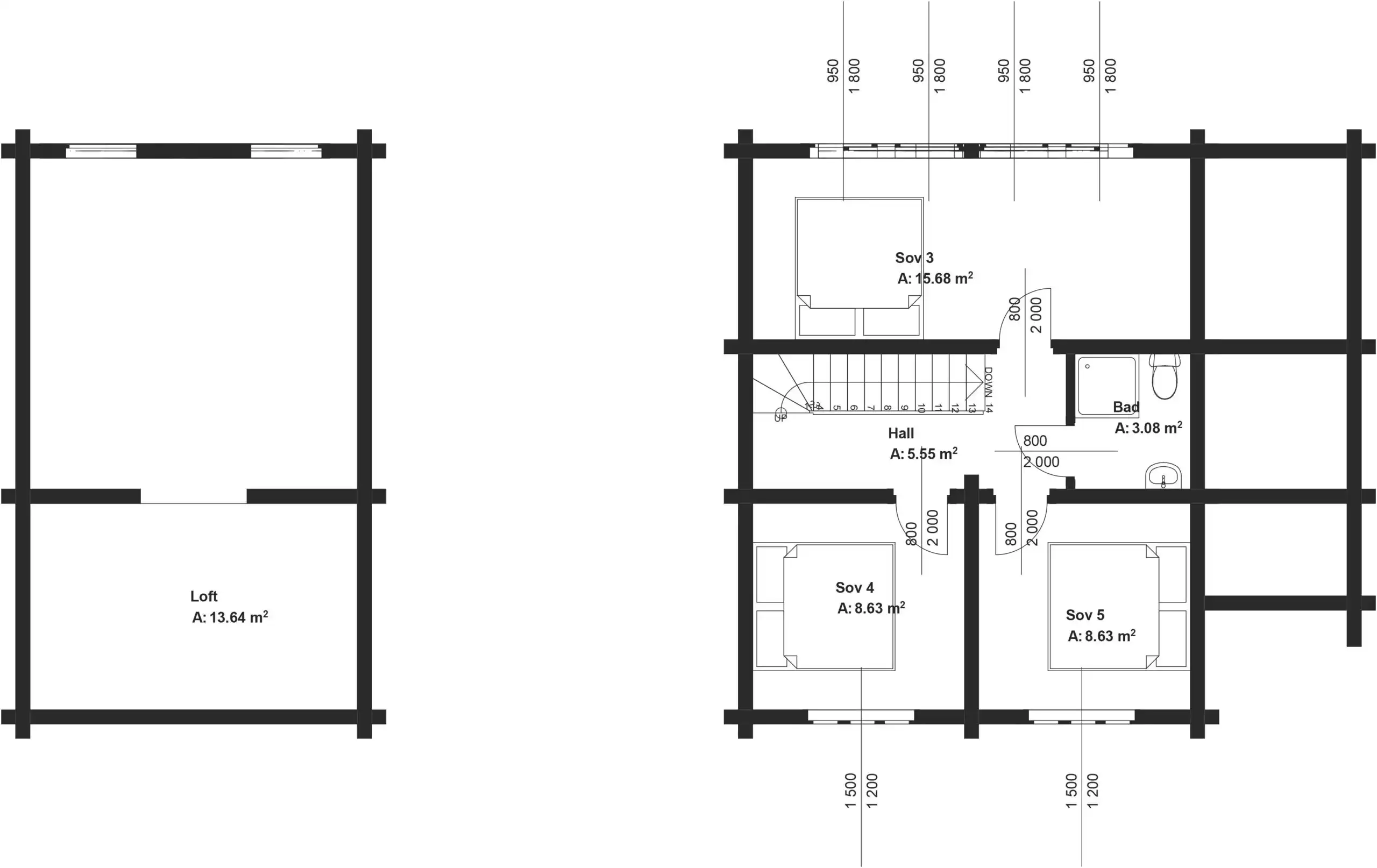
5 Bedrooms: Each bedroom is carefully placed to provide space, comfort, and privacy. Whether for hosting guests or accommodating family, there’s room for everyone to retreat and relax.
2 Bathrooms + 1 Extra WC: One bathroom on each floor ensures daily routines remain easy and efficient, while the additional WC adds everyday convenience.
Private Sauna: Located next to one of the bathrooms, the sauna offers a touch of Nordic tradition—ideal for unwinding after a ski tour or a mountain hike.
Dedicated TV Room: Movie nights have a home of their own. This enclosed media room is a special retreat for cinema lovers or families looking to relax in peace after a day outdoors.
Panoramic Windows: Floor-to-ceiling glass invites the outside in—showcasing breathtaking mountain views and flooding the home with natural light throughout the day.
Whether used as a primary residence, a luxurious holiday retreat or a shared family investment, LC167 is built to elevate everyday life.
Bedrooms
5
Bathrooms
2
BYA
135.7 m²
BRA
168.1 m²
NTA
260.13 m²
Width
19.8 m
Lenght
8.15 m
Height
6.99 m









