
Log Cabin LC 159
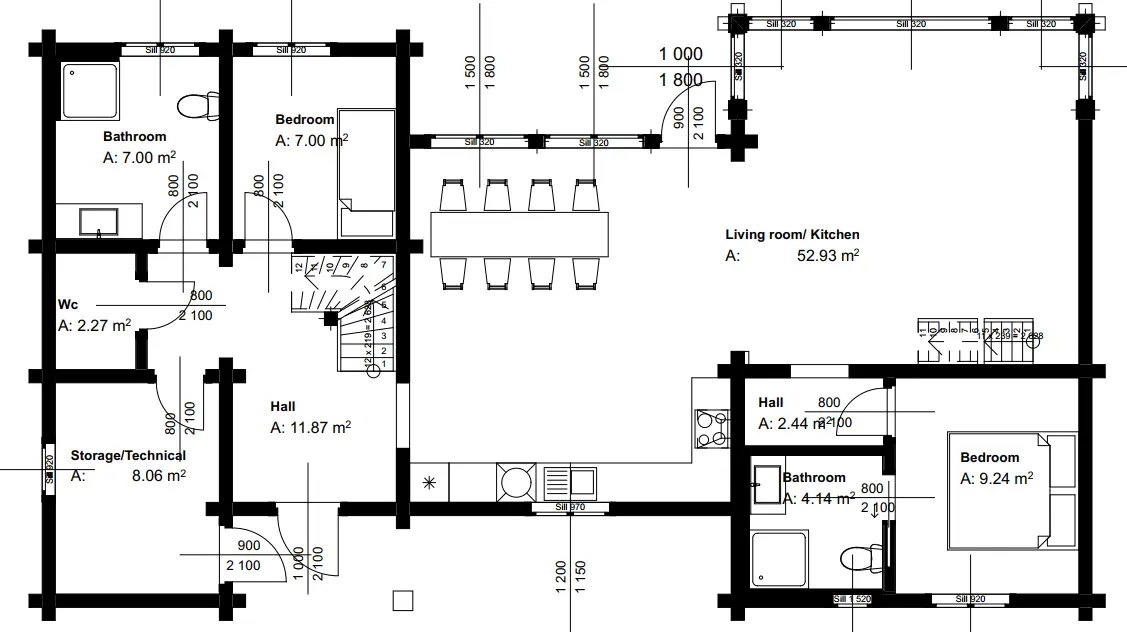
Discover LC159, a stunning 159.12m² log cabin that seamlessly blends rustic charm with modern luxury. This thoughtfully designed retreat welcomes you with a spacious 52.93m² living area flooded by dramatic ceiling-to-floor windows, creating an unforgettable connection to the mountain landscape. With five private bedrooms, two bathrooms and two WCs, LC159 comfortably accommodates families and groups while maintaining an intimate, cozy atmosphere. The versatile 16.79m² loft and charming 12m² upper-floor living space offer flexibility for quiet reading nooks, additional sleeping areas, or simply unwinding with panoramic views.
Built for those who appreciate both space and serenity, LC159 is where nature meets comfort. The open-concept living room serves as the heart of the home - perfect for gathering around the fire or entertaining guests- while the en-suite master bathroom provides a private sanctuary after adventurous days exploring the mountains. Whether you're planning weekend getaways or extended family retreats, this meticulously crafted cabin delivers the mountain lifestyle you've been dreaming of.
Bedrooms
5
Bathrooms
2
BYA
126 m²
BRA
154 m²
NTA
159 m²
Width
16 m
Lenght
9 m
Height
6.3 m








