
Log Cabin LC 155
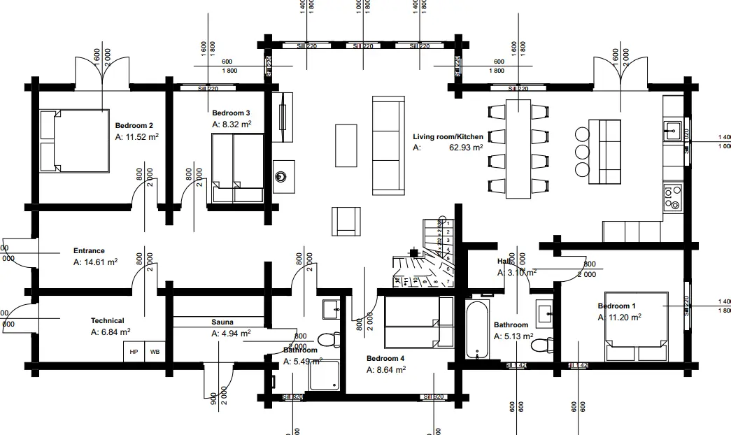
Welcome to LC155, a generous 161.5m² mountain retreat where families truly come together. With six well-appointed bedrooms and a magnificent 62.93m² open-plan living area, this cabin effortlessly hosts extended family gatherings and group getaways. Striking floor-to-ceiling windows frame the ever-changing mountain landscape - from golden sunrise to starlit evenings - flooding your home with natural light and bringing the outside in. Two full bathrooms, including one with an integrated sauna, plus an additional upstairs WC ensure everyone's comfort after days spent hiking, skiing, or simply breathing in the mountain air.
LC155 is where practicality meets Nordic soul. The expansive living space naturally draws people together - whether for lively dinners that stretch late into the night or quiet mornings curled up by the fire with coffee and a good book. The sauna offers that essential Nordic ritual: a peaceful sanctuary to unwind, reflect, and reconnect with yourself. This isn't just a cabin; it's where winter evenings become cosy traditions, summer days feel endless and every season brings your family closer to nature and each other. LC155 is mountain living as it should be - spacious, warm, and authentically yours.
Bedrooms
6
Bathrooms
2
BYA
167.1 m²
BRA
177.15 m²
NTA
161.5 m²
Width
20 m
Lenght
10 m
Height
6.25 m








