Log Cabin LC 129
Whether you’re gazing at snow-covered peaks or savoring the long summer evenings, LC129 invites you to reconnect with what matters most.
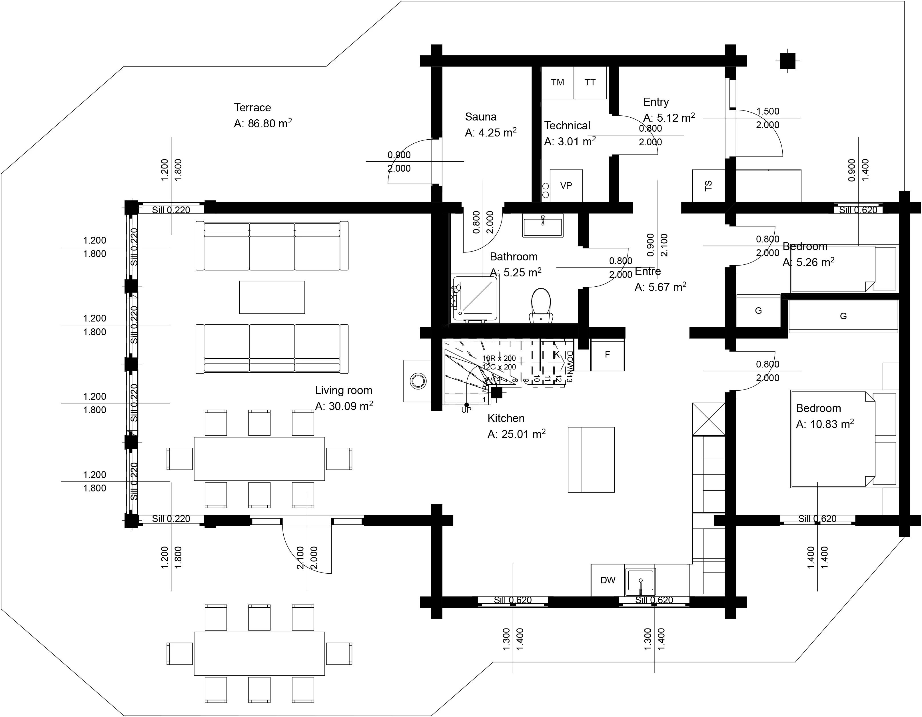
Highlights of LC129:
Thoughtful, Spacious Layout:
4 Bedrooms: Ideal for families or hosting guests, each room is designed with privacy and tranquility in mind.
2 Bathrooms: Modern, well-appointed spaces that make everyday routines feel indulgent.
Dedicated Sauna: A true Nordic touch — unwind after a day of skiing, hiking, or simply relaxing in nature.
Open-Plan Living Area (55.1 m²): Located on the ground floor, the generous living space flows effortlessly into the dining and kitchen areas, encouraging connection and comfort.
Lofted Living and Elevated Views:
Second-Floor Living Area (22.35 m²) + Loft (16.61 m²): An airy upper level offers extra space for work, play, or quiet retreat — complete with mountain-inspired charm.
Architectural Elegance:
Ceiling-to-Floor Windows in the Living Room: Immerse yourself in natural beauty every day. These expansive windows invite daylight in and frame the surrounding landscape like art.
High Ceilings: Enhancing the sense of space and serenity, the tall ceilings bring openness and grandeur to the main living area.
Outdoor Living Redefined:
Spacious Terrace (86.80 m²): Designed for year-round enjoyment — from cozy mornings with coffee to festive evenings under the stars. There’s room for dining, lounging, and taking in the alpine air.
Bedrooms
4
Bathrooms
2
BYA
137.03 m²
BRA
168.18 m²
NTA
156 m²
Width
10.15 m
Lenght
14.4 m
Height
6.17 m










