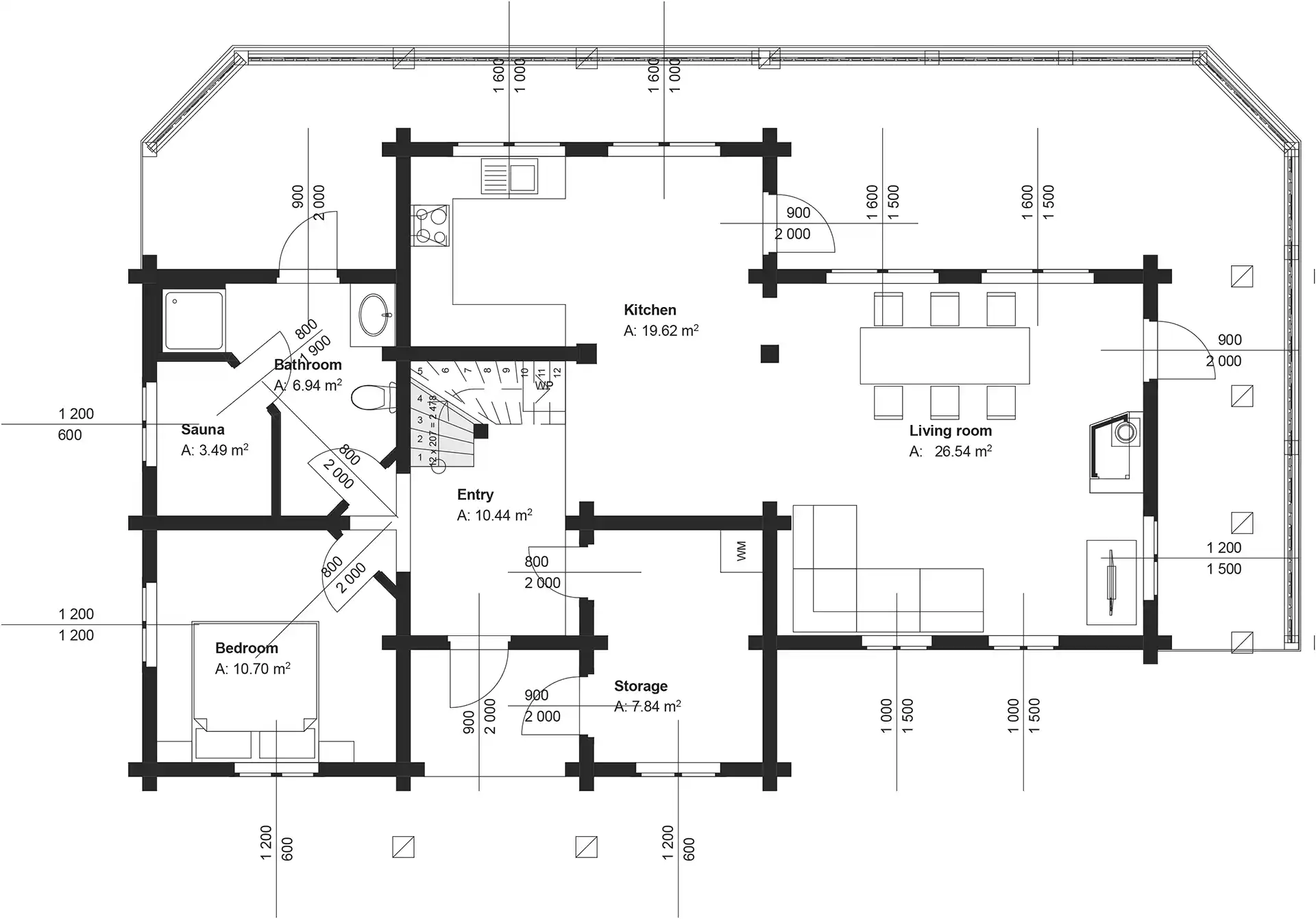
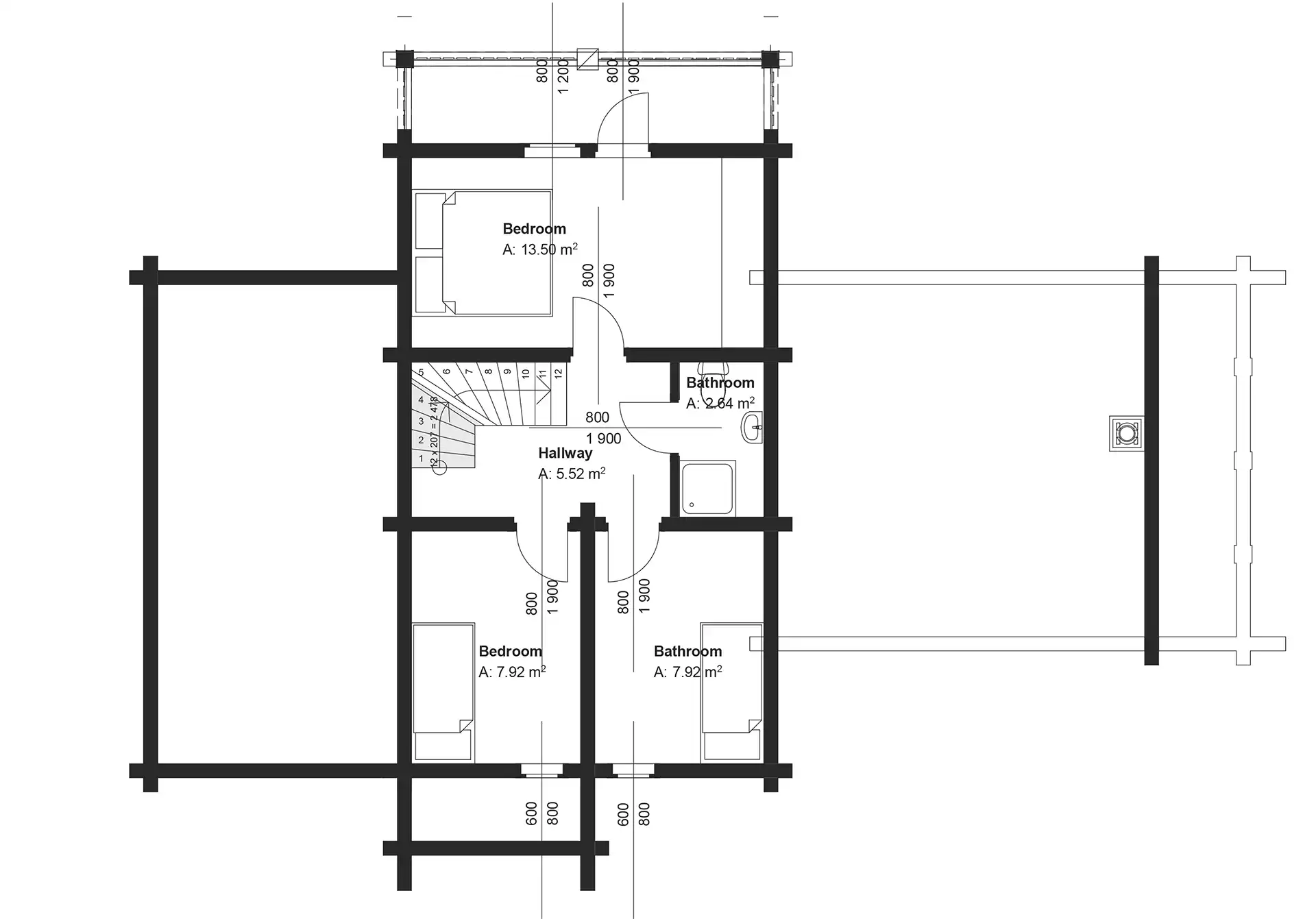
Log Cabin LC 105
Elegant Log Cabin LC105 offers 118m² of comfortable living with a thoughtful two-floor design. Featuring 4 bedrooms, a spacious bathroom with a sauna on the first floor, and a small bathroom on the second floor, this cabin is perfect for families or group getaways. A balcony from the main bathroom adds a unique touch, providing a serene space to enjoy the outdoors.
Bedrooms
4
Bathrooms
2
BYA
109.66 m²
BRA
116.34 m²
NTA
118 m²
Width
11 m
Lenght
15.1 m
Height
5.99 m









