Designing the Future: How KM Building Customers Are Shaping New Cabin Models
Jun 6, 2025
At KM Building, we believe that a well-crafted cabin is more than just a building — it’s a gateway to nature, a space for unforgettable moments, and a reflection of the lifestyle you value. That’s why we are constantly looking for new ways to innovate, improve, and build cabins that truly inspire. We know that the best ideas often come from the people who live in these homes, and that’s why we recently invited our community to share their vision for a new cabin model they’d love to see added to our catalog.
We’re excited to say that the response has been both inspiring and insightful. Your input helps us better understand what today’s cabin owners are looking for — from functional design to comfort and spaciousness. One particular idea stood out to us, and we’re proud to share it as an example of the collaborative spirit that drives our work forward.
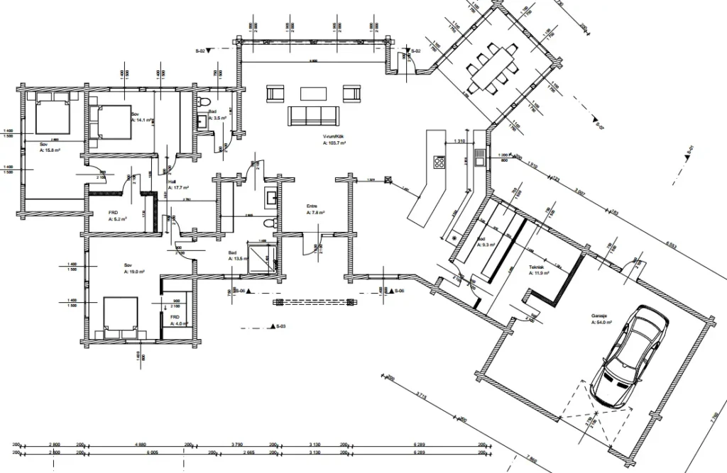
The concept is a beautifully thought-out, 274.3 square meter cabin that blends practicality with luxury. At its heart is a spacious open-plan living room and kitchen, totaling 103.7 square meters — perfect for hosting family gatherings, warming up by the fire after a day on the slopes, or simply enjoying a quiet moment with a mountain view. The layout emphasizes connection and openness, with large windows and natural materials creating a warm, welcoming atmosphere.
Another feature that impressed us was the inclusion of a generous 54 square meter garage, seamlessly connected to the rest of the home. This thoughtful addition offers both comfort and convenience, allowing for easy access to vehicles and storage year-round — especially important in the winter months or for those bringing gear for outdoor adventures.








This model is just one example of what becomes possible when we listen to our community. Your ideas help us push the boundaries of design while staying true to the craftsmanship and quality we’ve built our reputation on. Every feature we add, every improvement we make, is rooted in the real-life needs and aspirations of our customers.
As we look toward the future, we invite you to continue sharing your ideas and dreams with us. Whether it’s a new floor plan, a functional upgrade, or a vision of the perfect mountain retreat, your voice matters. Together, we’ll continue building cabins that are not only beautiful and durable, but also deeply personal.
We thank you for being part of our journey — and for helping us shape cabins that are as inspiring as the landscapes they’re built in.
